903-292-5172
1201 US Hwy 175 W, Athens, Texas
HomeFloorplans & PricesStylesDisplay ModelsSpecialsContactGalleryConstruction

Recreational Resort Cottages and Cabins
Athens, Texas

Platinum Series Single Section Homes



To view the Platinum Cottages ECONOMY SERIES Single Section Order Form, click here.



Platinum Cottages Single Section Floor Plans

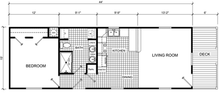
643 FD - The Guadalupe
Economy Series
1 bedroom / 1 bath
​porch optional
CURRENT DISPLAY MODEL
Base Price: $96,852

660 SQ FT
Price includes delivery*, blocking, leveling and tiedowns,
A/C installed (central air & heat) and one set of wooden steps
FREE PERIMETER BLOCKING
*Delivery within 100 miles of Athens TX. Additional freight charges apply for distances over 100 miles.
Please note: All pictures displayed may include added options. From time to time, available options and styles change. Some features shown in the pictures may no longer be available. Call 903-292-5172 to discuss in detail or email us at adam@rrcathens.com.
Standard features, options, and pricing are subject to change at any time without notice. The manufacturer reserves the right to make product changes, and Recreational Resort Cottages Athens cannot be held responsible for manufacturer changes. Please confirm the current standard features and available options and pricing at the time of your formal order.



677 E Prestige
Economy Series
1 bedroom/ 1bath
CURRENT DISPLAY MODEL

Base Price: $98,650
VIRTUAL TOUR
690 SQ FT
Price includes delivery*, blocking, leveling and tiedowns,
A/C installed (central air & heat) and one set of wooden steps
FREE PERIMETER BLOCKING
641 FD - The Lavaca
Economy Series
2 bedroom / 1 bath
​porch optional
PREVIOUS DISPLAY MODEL
Base Price: $102,302

750 SQ FT
Price includes delivery*, blocking, leveling and tiedowns,
A/C installed (central air & heat) and one set of wooden steps
FREE PERIMETER BLOCKING
645FD- The Brazos
Economy Series
2 bedroom/ 2bath

Base Price: $108,360
840 SQFT
Price includes delivery*, blocking, leveling and tiedowns,
A/C installed (central air & heat) and 2 sets of wooden steps
FREE PERIMETER BLOCKING

645FD- The Brazos Alt Kit
Economy Series
2 bedroom/ 2bath
ALTERNATE KITCHEN VERSION

Base Price: $108,360
840 SQFT
Price includes delivery*, blocking, leveling and tiedowns,
A/C installed (central air & heat) and one set of wooden steps
FREE PERIMETER BLOCKING